Administration (Non-permanent)
| Technical POC | Evy Ayala |
| COS Manager | Dan Echols |
Space Information
A "bay" consists of a 24'x16' section. The CUBE is 1 bay, but all other envelopes are 2 "bays" wide x the desired length. The facilities can be stretched or shortened modularly per "bay" width.
Option 1 is single bay design for a Company Command for 8 PN to fit in the CUBE.
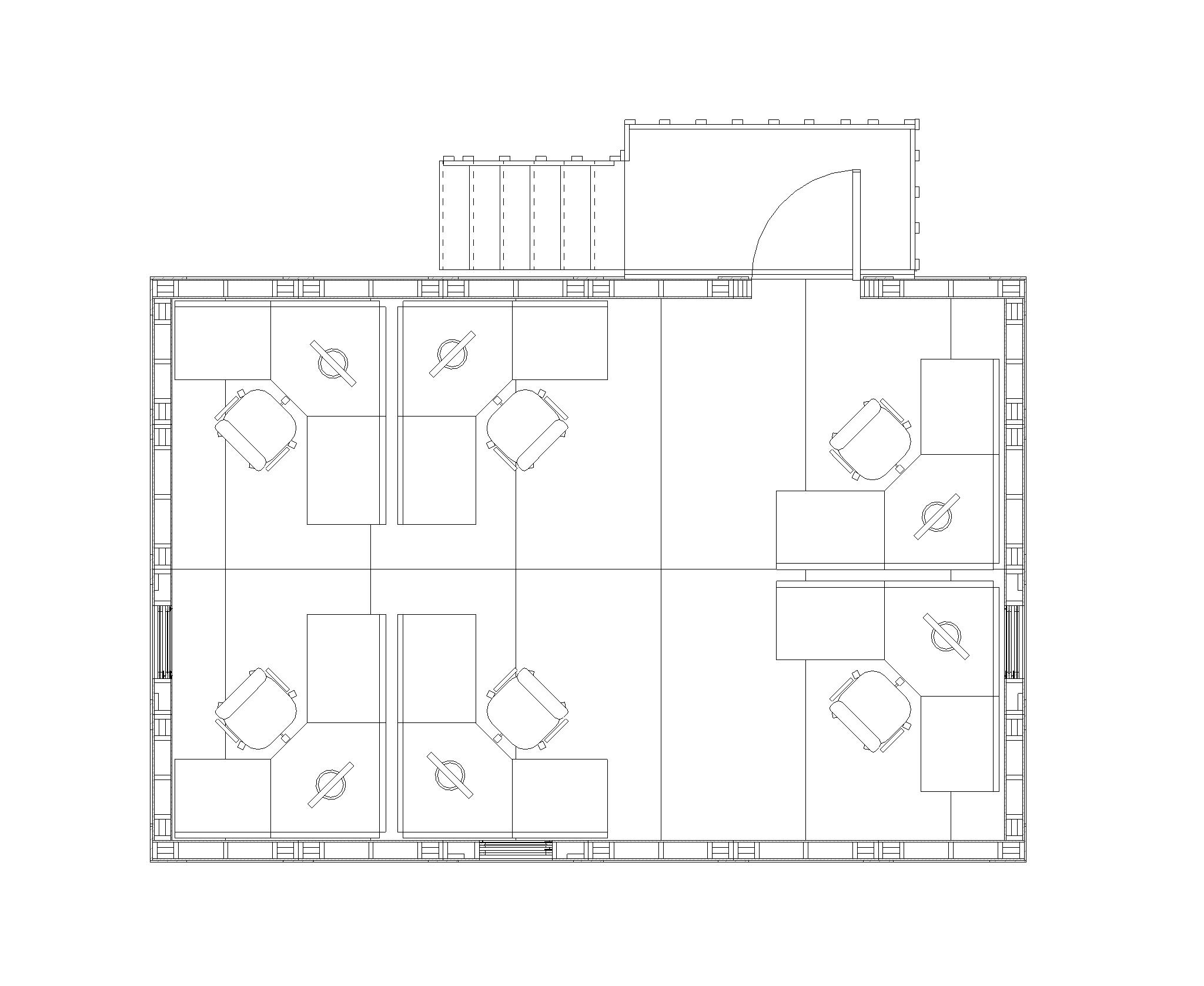
Option 2 is a 14 Bay (2x7) for Command operations up to 43 PN.
Option 3 is a 14 Bay (2x7) for Command operations up to 43 PN. with 3 enclosed conference rooms
Envelope Variations by Space Function
| Space Function | SAFE | FACE | TERRA Hut | SAWS | CUBE | MUTE |
|---|---|---|---|---|---|---|
| Administration Option 1 | X | |||||
| Administration Option 2 | X | X | X | X | X | |
| Administration Option 3 | X | X | X | X | X |
Library
| Name | Size |
|---|---|
| Contingency Standard | 1 item |
| CUBE ADMIN OPTION 1.jpg | 190 KB |
| SAFE ADMIN OPTION 2.jpg | 203 KB |
| SAFE ADMIN OPTION 3.jpg | 224 KB |