Medical (Non-permanent)

Technical POCEvy Ayala
COS ManagerDan Echols

Space Information

Off-The-Shelf Designs

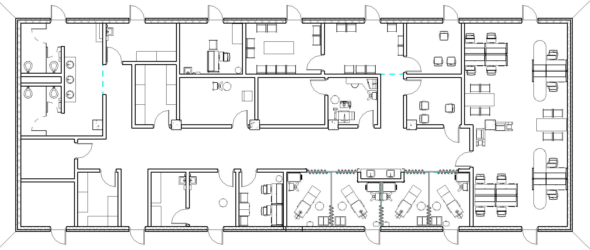
Option 1 - The Role 1 Medical Facility is one story 14 bays ( 462m2). It includes Trauma, Exam, Pharmacy, Utility and Laboratory rooms.

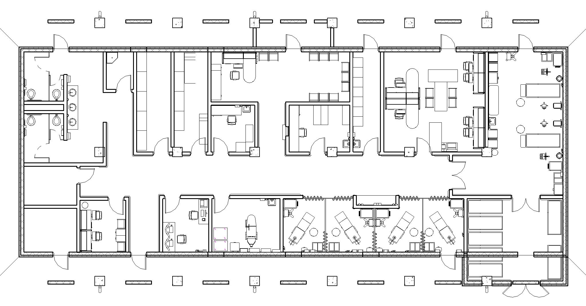
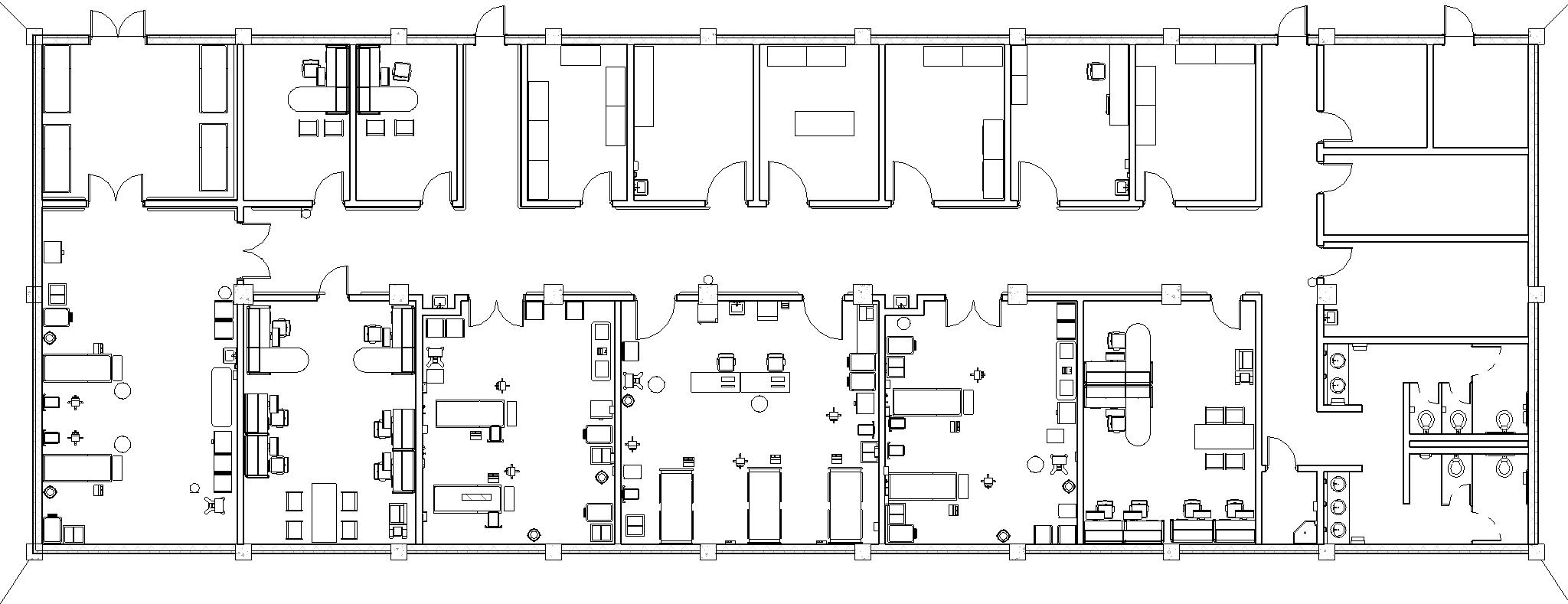
Option 2 - The Role 2 Medical Facility is 2 stories, 14 bays per floor (850m2). It includes Trauma, Exam, X-Ray, Blood Storage, Utility and Laboratory rooms.

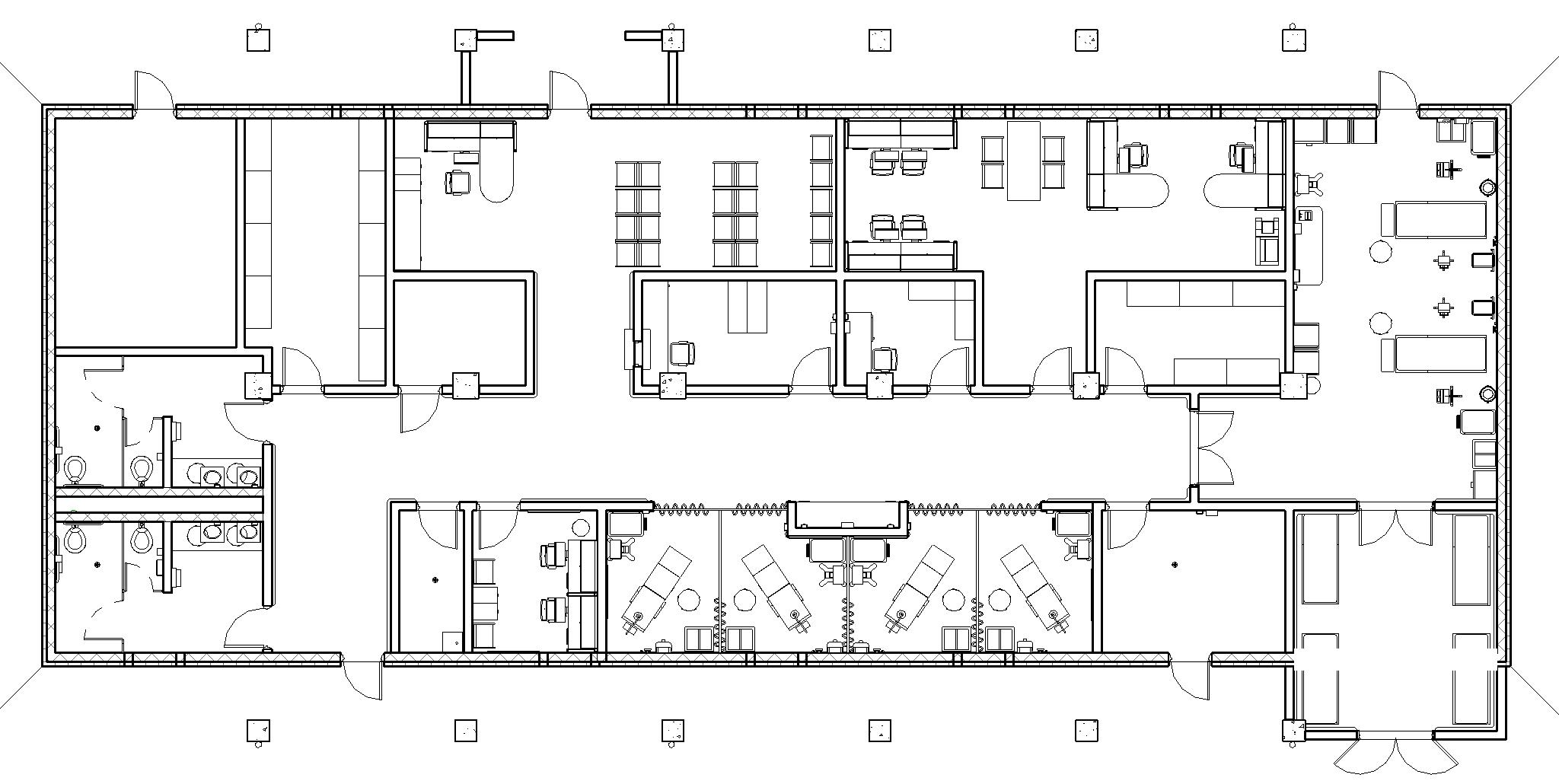
Option 3 - The Role 2+ Medical Facility is one story 14 bays (665m2). Trauma , Exam , Operating , Recovery, Utility and Laboratory rooms.

Option 4 - Blood Storages - Currently in design.

Library