Envelopes (Non-permanent)

Technical POCEvy Ayala
COS ManagerDan Echols

Space Information

Available exterior envelopes:

1. Standard Adaptive Facility Envelope (SAFE)

SAFE Render SAFE Envelope

The SAFE is a semi-permanent concrete frame structure with CMU infill, the dimensions are 12.9m x 34.3m (885m2). The design is two-story construction and can be either be lengthened or shortened by the standard bay length. Its design includes an integral protective roof. This is a great choice for Billeting, Administrative spaces, Operations, and Life Support Facilities.

2. Standard Adaptive Facility Envelope (SAFE1)

SAFE1 Render SAFE1 Envelope

The SAFE1 is a single-story version of the SAFE, the dimensions are 12.9m x 34.3m (442.5m2). This is another great choice for Billeting, Administrative spaces, Operations, Dining, and MWR.

The TERRA HUT option 2 is an enlarged version of the TERRA HUT option 1, the dimensions are 12.9m x 34.3m (442.5m2). This option cannot utilize a protective roof.

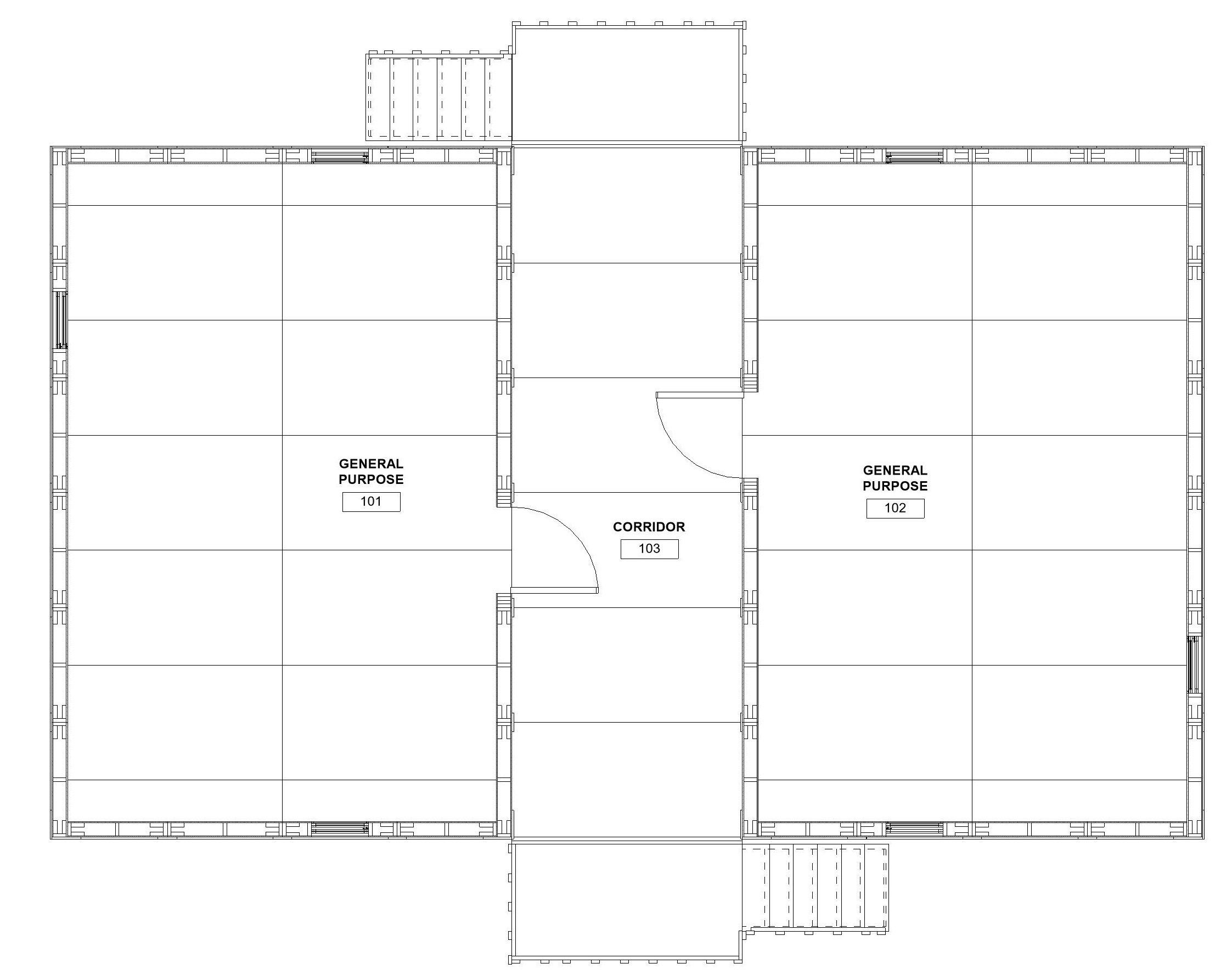
3. Four Area CMU Envelope (FACE)

FACE Render FACE Envelope

The FACE is a CMU modular structure, the dimensions are 12.9m x 34.3m (442.5m2). The Envelope is designed for single story construction and can either be lengthened or shortened by the standard bay length.

4. Multi Use Tall Envelope (MUTE)

MUTE Render MUTE Envelope

The MUTE is a single-story metal frame modular structure, dimensions 12.8m x 30.5m (390m2): it is available in two heights, 4m or 6m. The Envelope is constructed of metal and is designed to be lengthened or shortened by bay lengths. This is a great choice for Storage, Maintenance, or the Fire Station and Supporting Facilities.

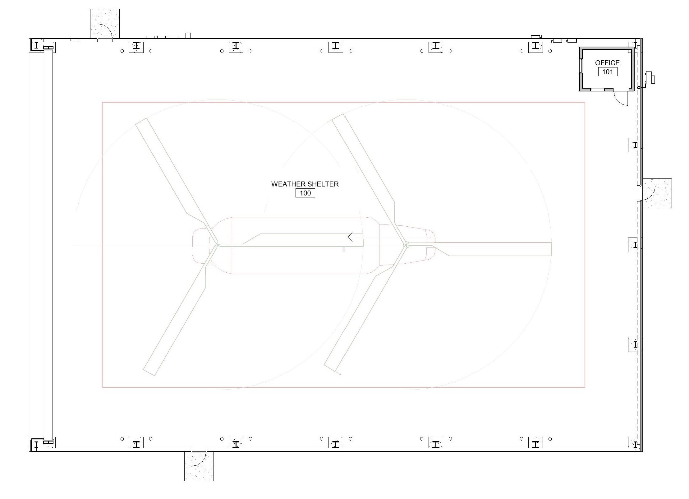
5. Weather Shelter - Hangar

Weather Shelter Hangar Render Weather Shelter Hangar Envelope

The Weather Shelter has two options: hangar or warehouse, the dimensions are 26m x 38.3m (961m2). Weather shelter hangar can accommodate one CH-47 in flight configuration (or other smaller airframes), has a large hangar door, and office space.

6. Weather Shelter - Warehouse

Weather Shelter Warehouse Render Weather Shelter Warehouse Envelope

Weather Shelter Warehouse can be used for Storage, Warehouse, or Vehicle Maintenance. Eave height can be lowered.

7. Tactical Earthen Rapidly Raised Assembly Hut (TERRA HUT) Option 1

Terra Hut Option 1 Render Terra Hut Option 1 Envelope

The TERRA HUT option 1 is a Compressed Earth Block Structure modular structure, the dimensions are 8m x 14.7m (118.3m2). The Envelope is designed for single-story construction and can be either be lengthened or shortened by the standard bay length. A protective roof is available. The envelope is constructed with on-site soils 10%-20% clay, 65%-80% sand, 10%-20% silt and 7% cement. Block making equipment is needed (contact CoS for equipment information). Blocks must cure for 7 days prior to use. This is an excellent choice for locations with limited materials. This envelope provides the most cost-effective, non-combustible facility.

8. Tactical Earthen Rapidly Raised Assembly Hut (TERRA HUT) Option 2

Terra Hut Option 2 Render Terra Hut Option 2 Envelope

9. Standard Adaptive Wood Structure (SAWS)

SAWS Render SAWS Envelope

The SAWS and SAWS1 are wood structures with concrete foundations, the dimensions are 12.9m x 34.3m (442.5m2) for a single story and (885m2) for two stories. The Envelope is constructed of wood. It is designed for single or two-story construction and can either be lengthened or shortened by the standard bay length. This is a great choice for Billeting, Administrative Spaces, and Operations.

10. Common Uniform Building Envelope (CUBE)

CUBE Render CUBE Envelope

The CUBE consists of panelized wood panels, the dimensions are 7.3M x 4.9M (35.77m2), which is the size of a single modular "Bay". The structure, including the foundation, is built entirely of wood, and can be constructed with skilled labor in approximately 40 hours. This is a temporary facility with a design life of 5 years: its design life can be extended up to 25 years with exterior finishes.

Click HERE to download a Video of CUBE Assembly

Click HERE to view an Article on a CUBE Build in Poland

11. CUBE Tower

CUBE Tower Render CUBE Tower Envelope

The CUBE Tower is a version of the CUBE, the dimensions with stairs in the interior are 4.9m x 4.9m (24m2). The Envelope maintains as many original CUBE parts as possible. It is a great choice for a guard tower or watch tower.

12. CUBE Wide

CUBE Wide Render CUBE Wide Envelope

The CUBE Wide is two CUBEs put together with a breezeway in between, the dimensions are 12.2m x 7.3m (89.2m2). The CUBE Wide is very similar to the SAWS design, but it is easier to construct, relocatable, and does not have a concrete foundation.