Religious (Non-permanent)
| Technical POC | Evy Ayala |
| COS Manager | Dan Echols |
Space Information
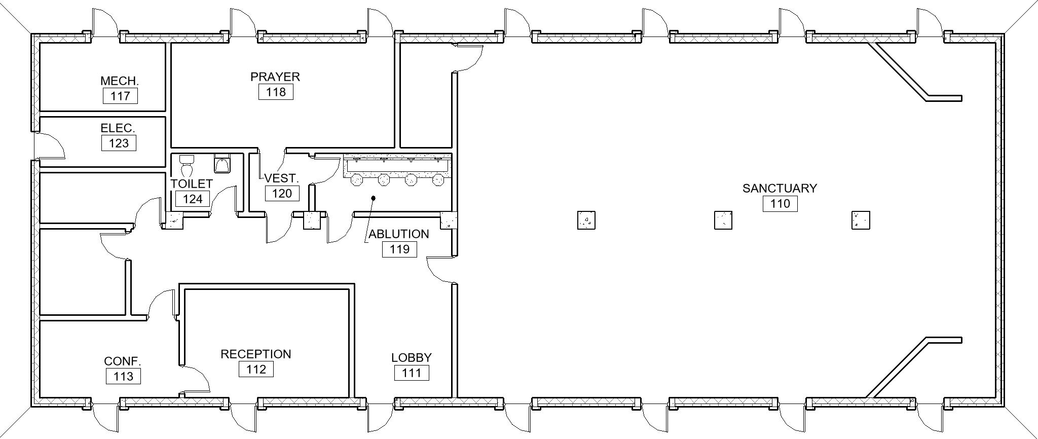
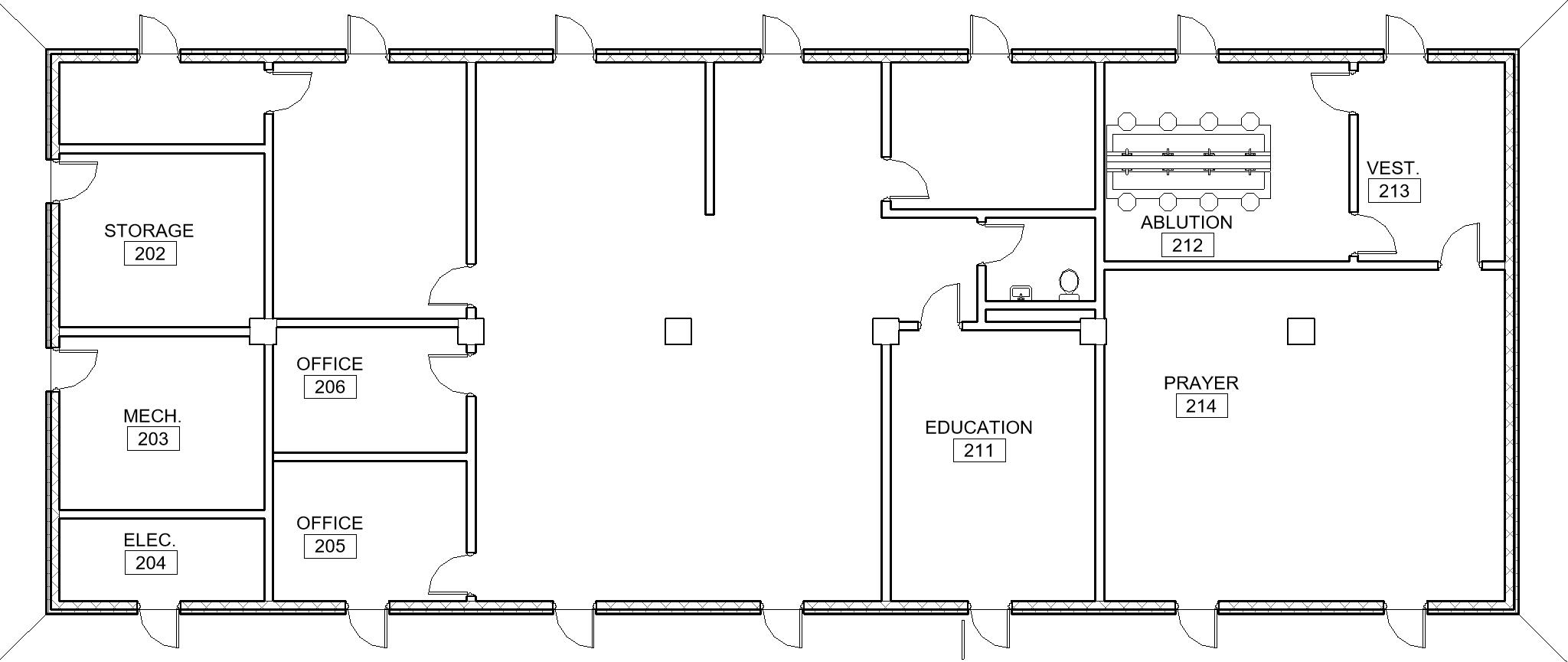
Option 1 - Includes Open Seating Sanctuary on Ground Floor and Offices/ Classrooms/Storage/Prayer on First Floor (850m2).
Option 2 - Includes Open Seating Sanctuary, with Offices, Restrooms, Prayer room, and Conference Room (442m2).
Library
Home/
| Name | Size |
|---|---|
| RELIGIOUS 1 STORY FLOOR PLAN.jpg | 145 KB |
| RELIGIOUS 2 STORY FIRST FLOOR PLAN.jpg | 143 KB |
| RELIGIOUS 2 STORY GROUND FLOOR PLAN.jpg | 113 KB |