Low Density Barracks (Officer Quarters) (Non-permanent)
| Technical POC | Evy Ayala |
| COS Manager | Dan Echols |
Space Information
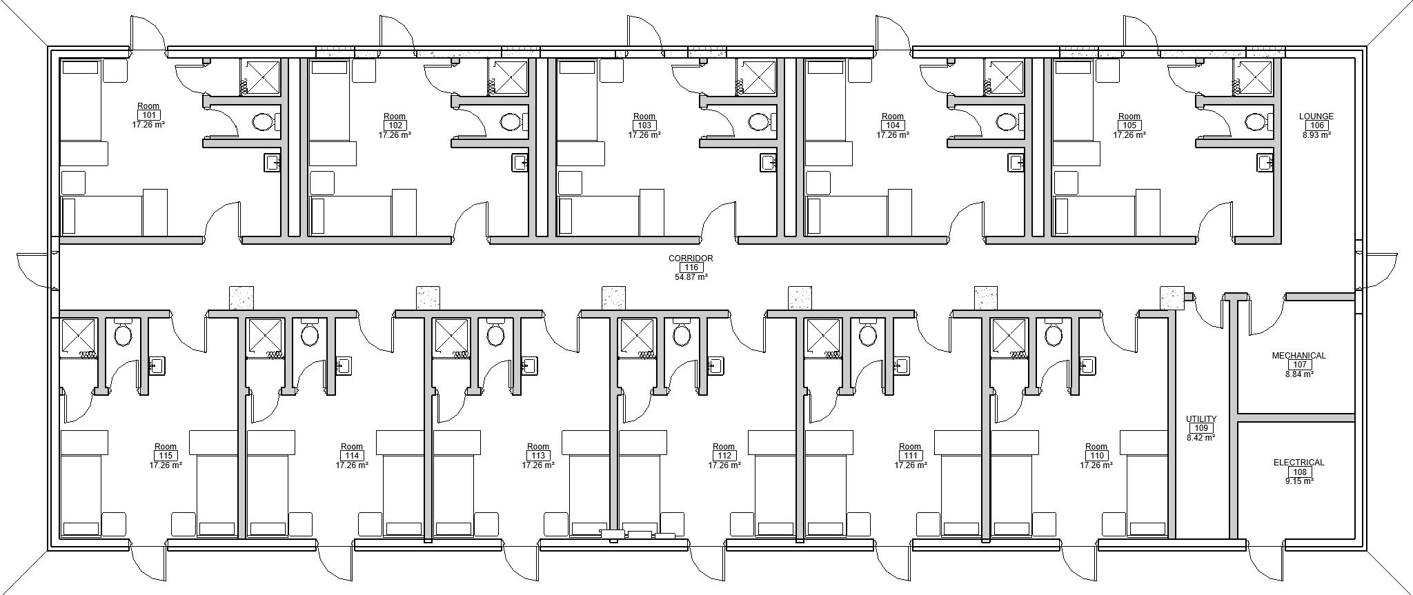
Option 1 - Includes 19 Rooms, 2 Beds Per Room, with Office Area for up to 38 PN.
Option 2 - Includes 11 Rooms, 2 Beds Per Room, Office Area and Bathroom for up to 22 PN.
Library
Home/
| Name | Size |
|---|---|
| LOW DENSITY BARRACKS PLAN OPTION 1.jpg | 193 KB |
| LOW DENSITY BARRACKS PLAN OPTION 2.jpg | 197 KB |