Joint Operation Center (Non-permanent)
| Technical POC | Evy Ayala |
| COS Manager | Dan Echols |
Space Information
Off-The-Shelf Designs
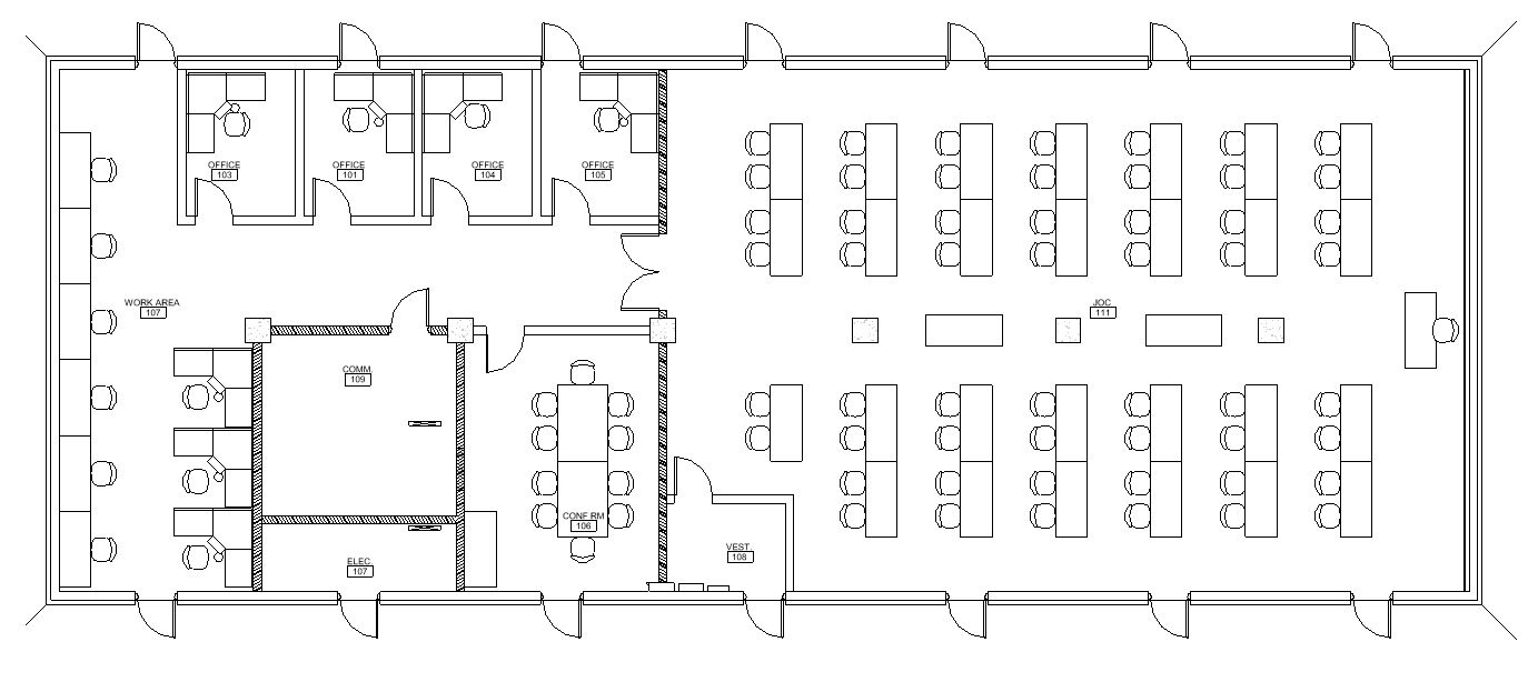
Option 1 Open seating, private office space and one conference room for 107PN.
Option 2 Open seating space for 109PN.
Library
Home/
| Name | Size |
|---|---|
| JOINT OPERATION CENTER OPTION 1.JPG | 109 KB |
| JOINT OPERATION CENTER OPTION 2.JPG | 97 KB |