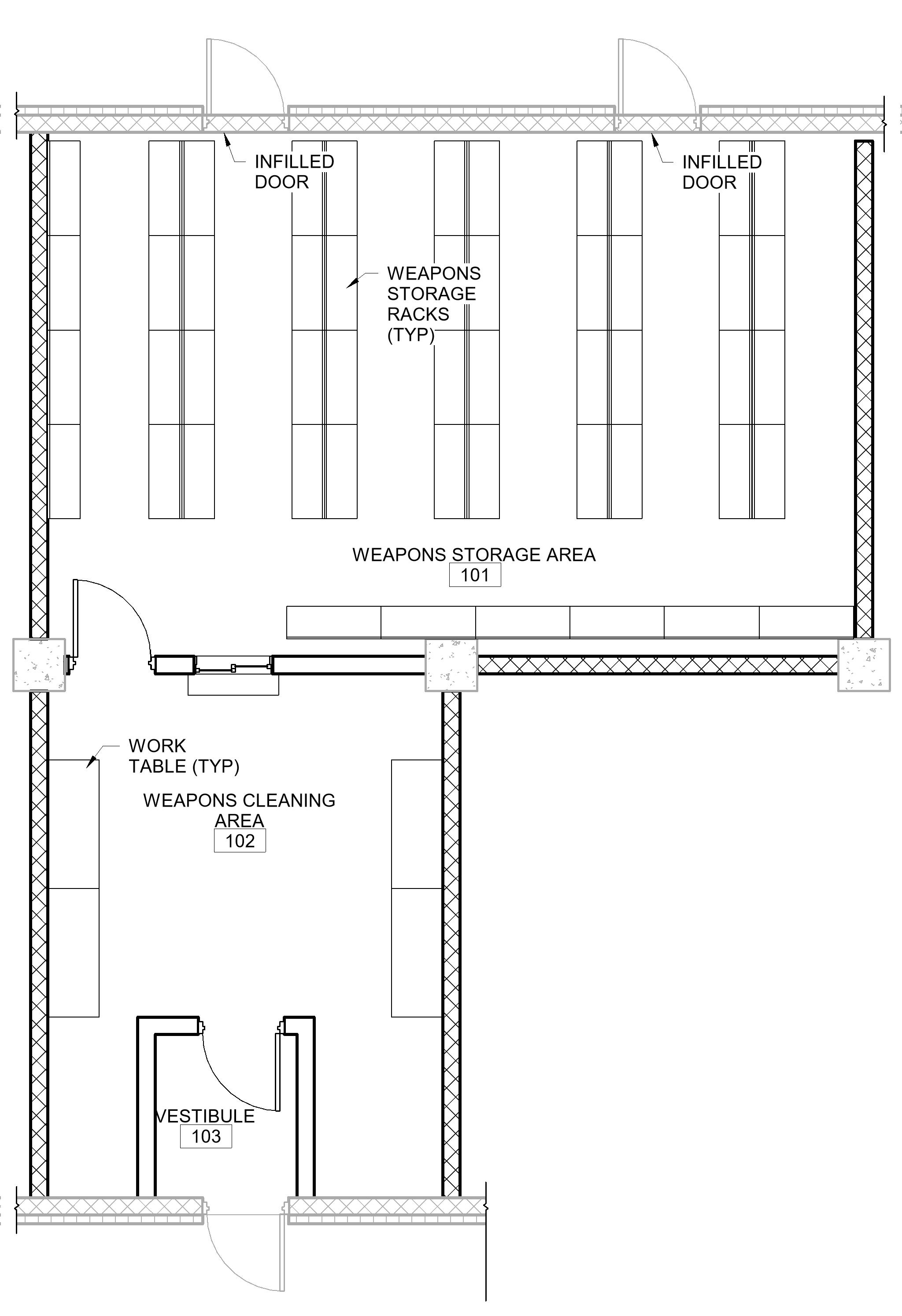
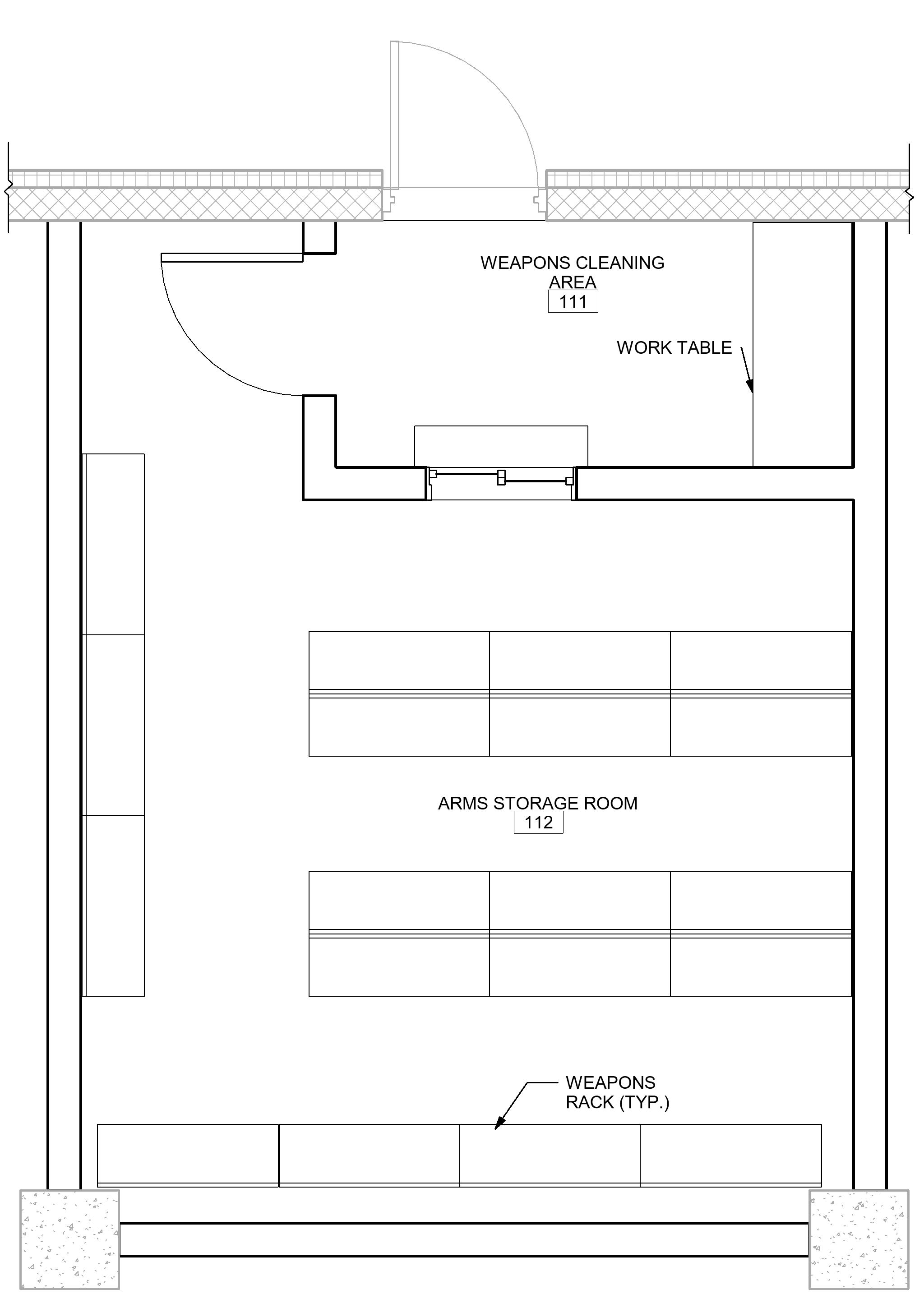
Weapon Storage (Non-permanent)
| Technical POC | Evy Ayala |
| COS Manager | Dan Echols |
Space Information
ASSEMBLIES
Option 1, 2 Bay, 40 PN
Option 2, 2 Bay, 22 PN
Option 3, 1 Bay, 12 PN
Option 4, 1 Bay, 12 PN
| Technical POC | Evy Ayala |
| COS Manager | Dan Echols |
ASSEMBLIES
Option 1, 2 Bay, 40 PN
Option 2, 2 Bay, 22 PN
Option 3, 1 Bay, 12 PN
Option 4, 1 Bay, 12 PN