Billeting (Non-permanent)
| Technical POC | Evy Ayala |
| COS Manager | Dan Echols |
Space Information
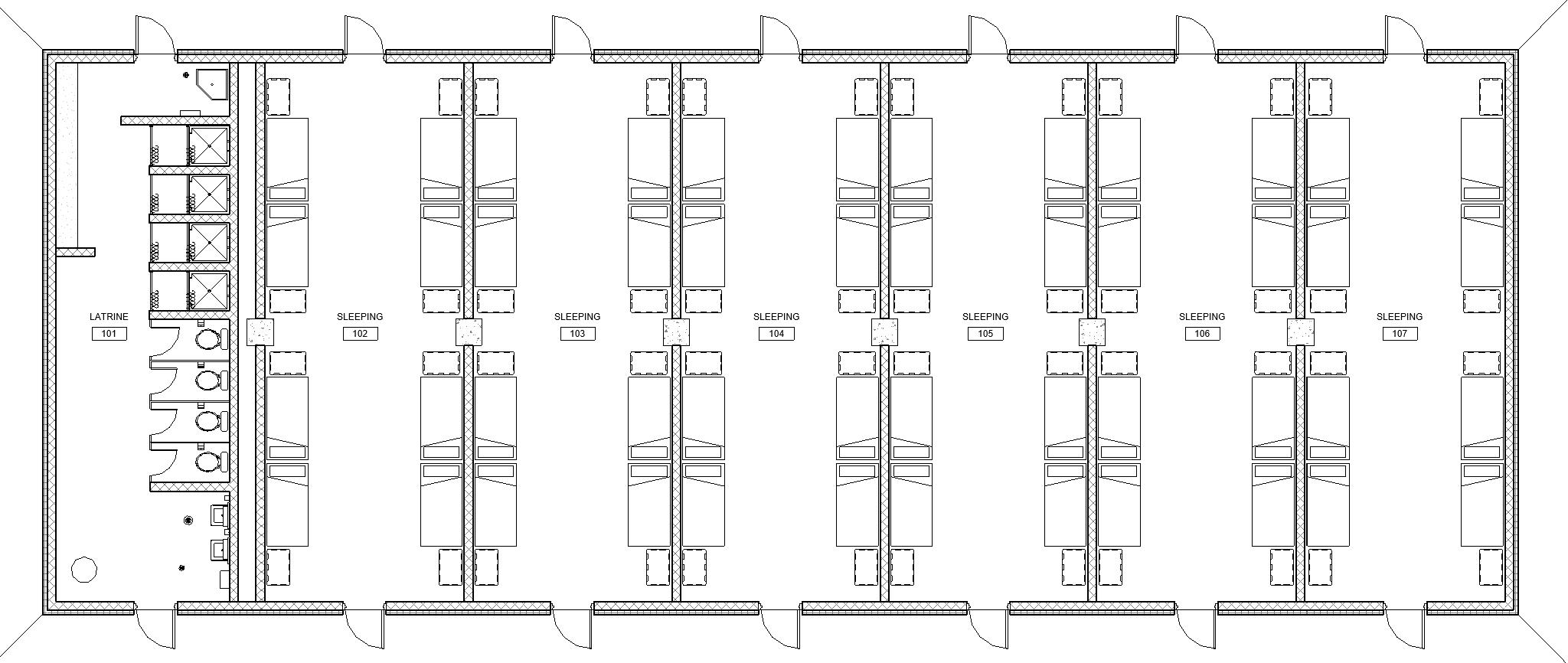
Billeting Option 1 is 14 Bay, Full Floor Semi-open barracks with Latrine/Shower for up to 48 PN total, 8 PN per room.
Billeting Option 2 is 14 Bay, Full Floor Open Barracks for up to 56PN total, 8 PN per room.
Envelope Variations by Space Function
| Space Function | SAFE | FACE | TERRA Hut | SAWS | CUBE | MUTE |
|---|---|---|---|---|---|---|
| Billeting Option 1 | X | X | X | X | X | |
| Billeting Option 2 | X | X | X | X | X |
Library
Home/
| Name | Size |
|---|---|
| 14 BAY (FULL) BILLET 48 PN FLOOR PLAN.jpg | 226 KB |
| 14 BAY (FULL) BILLET 56 PN FLOOR PLAN.jpg | 196 KB |